Word je warm van ons verhaal? Laten we samen kennismaken!
Neem contact op- 146 m²
- 190 m²
- 3
- B
Omschrijving
Uitgebouwde, zeer goed onderhouden 2^1 kapwoning met eigen oprit, voorzien van zonnepanelen en een energielabel B! Daarnaast is de woning aan een kindvriendelijke speelweide gelegen.
Aparte eetkeuken, welness badkamer, ruimte voor een thuiswerkplek en/of praktijk aan huis.
De zonnige tuin op het oosten heeft geen inkijk van achterburen en praktische achterom.
De wijk is kindvriendelijk (o.a. natuurspeeltuin) en dicht bij de buitenrand (wandelroutes) van Helvoirt gelegen. De centrumvoorzieningen zijn op enkele fietsminuten gelegen.
Parterre:
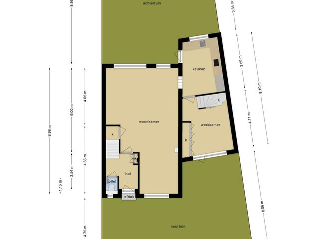
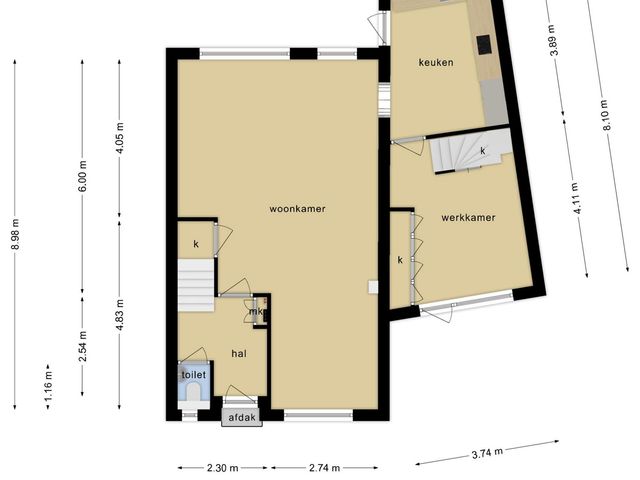
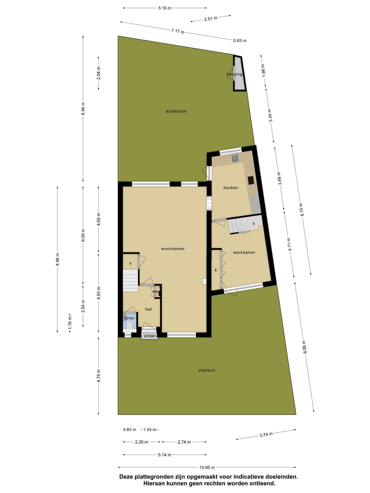
•Entree, hal met vernieuwde meterkast, toilet, trapopgang en toegang tot de woonkamer.
•De lichte woonkamer heeft door de royale afmeting diverse indelingsmogelijkheden en staat middels een toog in verbinding met de keuken. De vloer is afgewerkt met een fraaie eikenhouten vloer. Een praktische kast onder de trap zorgt voor extra berging.
•Door de uitbouw is er een aparte keuken met bijkeuken/berging gerealiseerd.
•De eetkeuken staat in verbinding met zowel de woonkamer als de tuin. In de keuken is voldoende ruimte voor het plaatsen van een eettafel. Daarnaast is de keuken uitgerust met veel bergruimte en inbouwapparatuur, te weten: een combioven, een vaatwasser, een inductiekookplaat, een afzuigkap en een spoelbak.
•Bijkeuken/berging met vaste kastenwand, deur naar de oprit en vaste trap naar de verdieping boven de aanbouw. Deze ruimte is nu in gebruik als hobbyruimte/berging maar met kleine aanpassingen is hier een slaapkamer of fijne werkplek te maken.
1ste verdieping betonvloer:
•Aan de overloop grenzen in totaal 2 slaapkamers (voorheen 3) en de luxe badkamer.
•De welness badkamer is voorzien van een ligbad, een inloopdouche met massagefunctie, een wandtoilet, een wastafelmeubel en een sauna! De tegelvloer is voorzien van comfortabele vloerverwarming.
•De twee slaapkamers hebben een courante maatvoering, de grote slaapkamer heeft een royale walk-in-closet en de gehele verdieping is afgewerkt met een laminaatvloer.
2de verdieping betonvloer:
•Voorzolder met daglicht en aansluitingen voor de cv-ketel, de wasmachine en de droger.
•Aansluitend is de derde slaapkamer bereikbaar met een dakkapel.
•Ook deze verdieping is afgewerkt met laminaat vloerdelen.
Buitenleven:
•Voortuin met oprit voor de eigen auto, daarnaast is er voor de woning voldoende openbare parkeergelegenheid.
•In de achtertuin is een kleine houten berging aanwezig en zijn er meerdere gezellige terrasjes aangelegd, zodat desgewenst zon of schaduw opgezocht kan worden. Aan de achtergevel is nog een brede zonneluifel aanwezig.
•In de houten erfafscheiding zit een poort t.b.v. de achterom.
Specificaties:
Bouwjaar: 1980
Perceeloppervlak: 190m²
Woonoppervlak: 145,60m²
Overige inpandige ruimte: 13,4m²
Gebouw gebonden buitenruimte: 0,5m²
Externe buitenruimte: 1m²
Inhoud van de woning: 563,13m³
Energielabel: B
Aanvaarding: in overleg
ENTHOUSIAST geworden over deze ruime goed onderhouden 2^1 kapwoning met een heerlijke tuin en ruimte voor een extra slaapkamer of werkplek?
Een juiste beoordeling van de woning komt het beste tot zijn recht bij een persoonlijke rondleiding, welke wij graag voor u verzorgen.
Wonen in de heerlijkheid Helvoirt, een buitenplaats van Vught!
Een typisch en idyllisch Brabants dorpje in de gemeente Vught. In Helvoirt leef je in het Groene Woud tussen de natuurgebieden Helvoirts Broek en Nationaal Park de Loonse & Drunense Duinen. Er zijn volop mogelijkheden om in de nabijheid van de woning in de prachtige natuur te fietsen en te wandelen, waarbij je eventueel een stop kunt maken in een van de gezellige restaurants en cafés in de buurt.
Helvoirt is een verrassend dorp met diverse faciliteiten, winkels en een actief verenigingsleven.
Een plaats, die juist door de vele faciliteiten al snel een thuisgevoel geeft voor jong en oud.
In het dorp en de omgeving wordt het hele jaar door van alles georganiseerd; van festivals, concerten, sportevenementen tot culturele activiteiten. Bourgondisch Brabant is echt van toepassing op deze regio met volop mooie kleine en wat grotere plaatsen.
Binnen een paar minuten ben je bovendien in het eveneens gezellige Vught of Oisterwijk en het is nog geen kwartier rijden naar Den Bosch of Tilburg. In Helvoirt woon je vooral heel comfortabel met scholen, sportvelden en supermarkten op loopafstand.
Toon meer
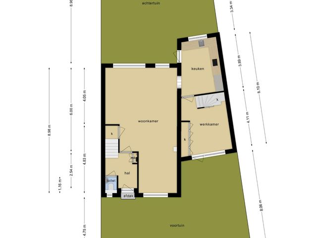
Aparte eetkeuken, welness badkamer, ruimte voor een thuiswerkplek en/of praktijk aan huis.
De zonnige tuin op het oosten heeft geen inkijk van achterburen en praktische achterom.
De wijk is kindvriendelijk (o.a. natuurspeeltuin) en dicht bij de buitenrand (wandelroutes) van Helvoirt gelegen. De centrumvoorzieningen zijn op enkele fietsminuten gelegen.
Parterre:
•Entree, hal met vernieuwde meterkast, toilet, trapopgang en toegang tot de woonkamer.
•De lichte woonkamer heeft door de royale afmeting diverse indelingsmogelijkheden en staat middels een toog in verbinding met de keuken. De vloer is afgewerkt met een fraaie eikenhouten vloer. Een praktische kast onder de trap zorgt voor extra berging.
•Door de uitbouw is er een aparte keuken met bijkeuken/berging gerealiseerd.
•De eetkeuken staat in verbinding met zowel de woonkamer als de tuin. In de keuken is voldoende ruimte voor het plaatsen van een eettafel. Daarnaast is de keuken uitgerust met veel bergruimte en inbouwapparatuur, te weten: een combioven, een vaatwasser, een inductiekookplaat, een afzuigkap en een spoelbak.
•Bijkeuken/berging met vaste kastenwand, deur naar de oprit en vaste trap naar de verdieping boven de aanbouw. Deze ruimte is nu in gebruik als hobbyruimte/berging maar met kleine aanpassingen is hier een slaapkamer of fijne werkplek te maken.
1ste verdieping betonvloer:
•Aan de overloop grenzen in totaal 2 slaapkamers (voorheen 3) en de luxe badkamer.
•De welness badkamer is voorzien van een ligbad, een inloopdouche met massagefunctie, een wandtoilet, een wastafelmeubel en een sauna! De tegelvloer is voorzien van comfortabele vloerverwarming.
•De twee slaapkamers hebben een courante maatvoering, de grote slaapkamer heeft een royale walk-in-closet en de gehele verdieping is afgewerkt met een laminaatvloer.
2de verdieping betonvloer:
•Voorzolder met daglicht en aansluitingen voor de cv-ketel, de wasmachine en de droger.
•Aansluitend is de derde slaapkamer bereikbaar met een dakkapel.
•Ook deze verdieping is afgewerkt met laminaat vloerdelen.
Buitenleven:
•Voortuin met oprit voor de eigen auto, daarnaast is er voor de woning voldoende openbare parkeergelegenheid.
•In de achtertuin is een kleine houten berging aanwezig en zijn er meerdere gezellige terrasjes aangelegd, zodat desgewenst zon of schaduw opgezocht kan worden. Aan de achtergevel is nog een brede zonneluifel aanwezig.
•In de houten erfafscheiding zit een poort t.b.v. de achterom.
Specificaties:
Bouwjaar: 1980
Perceeloppervlak: 190m²
Woonoppervlak: 145,60m²
Overige inpandige ruimte: 13,4m²
Gebouw gebonden buitenruimte: 0,5m²
Externe buitenruimte: 1m²
Inhoud van de woning: 563,13m³
Energielabel: B
Aanvaarding: in overleg
ENTHOUSIAST geworden over deze ruime goed onderhouden 2^1 kapwoning met een heerlijke tuin en ruimte voor een extra slaapkamer of werkplek?
Een juiste beoordeling van de woning komt het beste tot zijn recht bij een persoonlijke rondleiding, welke wij graag voor u verzorgen.
Wonen in de heerlijkheid Helvoirt, een buitenplaats van Vught!
Een typisch en idyllisch Brabants dorpje in de gemeente Vught. In Helvoirt leef je in het Groene Woud tussen de natuurgebieden Helvoirts Broek en Nationaal Park de Loonse & Drunense Duinen. Er zijn volop mogelijkheden om in de nabijheid van de woning in de prachtige natuur te fietsen en te wandelen, waarbij je eventueel een stop kunt maken in een van de gezellige restaurants en cafés in de buurt.
Helvoirt is een verrassend dorp met diverse faciliteiten, winkels en een actief verenigingsleven.
Een plaats, die juist door de vele faciliteiten al snel een thuisgevoel geeft voor jong en oud.
In het dorp en de omgeving wordt het hele jaar door van alles georganiseerd; van festivals, concerten, sportevenementen tot culturele activiteiten. Bourgondisch Brabant is echt van toepassing op deze regio met volop mooie kleine en wat grotere plaatsen.
Binnen een paar minuten ben je bovendien in het eveneens gezellige Vught of Oisterwijk en het is nog geen kwartier rijden naar Den Bosch of Tilburg. In Helvoirt woon je vooral heel comfortabel met scholen, sportvelden en supermarkten op loopafstand.
Kenmerken
Overdracht
- Aangeboden sinds
- 5 augustus 2025
- Status
- Verkocht
- Aanvaarding
- In overleg
Bouw
- Soort woning
- Woonhuis
- Bouwjaar
- 1980
Oppervlakten en inhoud
- Oppervlakte wonen
- 146 m²
- Oppervlakte overige inpandige ruimte
- 13 m²
- Oppervlakte gebouwgebonden buitenruimte
- 1 m²
- Oppervlakte externe bergruimte
- 1 m²
- Perceel
- 190 m²
- Inhoud
- 563 m³
Indeling
- Aantal kamers
- 5
- Aantal slaapkamers
- 3
- Aantal badkamers
- 1
- Badkamervoorzieningen
- Ligbad, toilet, wastafelmeubel, inloopdouche, vloerverwarming en sauna
- Aantal woonlagen
- 3
Energie
- Energielabel
- B
- Isolatie
- Dakisolatie, muurisolatie, vloerisolatie en gedeeltelijk dubbel glas
- Verwarming
- Cv-ketel en vloerverwarming gedeeltelijk
- Warm water
- Cv-ketel
- Cv-ketel
- Combiketel
Buitenruimte
- Tuin
- Achtertuin en voortuin
- Achtertuin
- 60 m² gelegen op het oosten met achterom
Garage
- Soort garage
- Geen garage