Word je warm van ons verhaal? Laten we samen kennismaken!
Neem contact op- 74 m²
- 2
- D
Omschrijving
Ben je op zoek naar een comfortabel en sfeervol appartement op een rustige locatie, met alle benodigde voorzieningen binnen handbereik? Dan is dit lichte en instapklare 3-kamerappartement precies wat je zoekt. Gelegen aan het water en op slechts 10 minuten fietsen van het centrum, woon je hier op een unieke plek met natuur en voorzieningen in de nabije omgeving.
Maak een wandeling of fietstocht langs rivier de Aa, zwem of relax bij recreatiegebied de Oosterplas, of ontdek het nabijgelegen Prins Hendrikpark en het Zuiderpark. Ook Sportiom ligt vlakbij voor sportieve activiteiten.
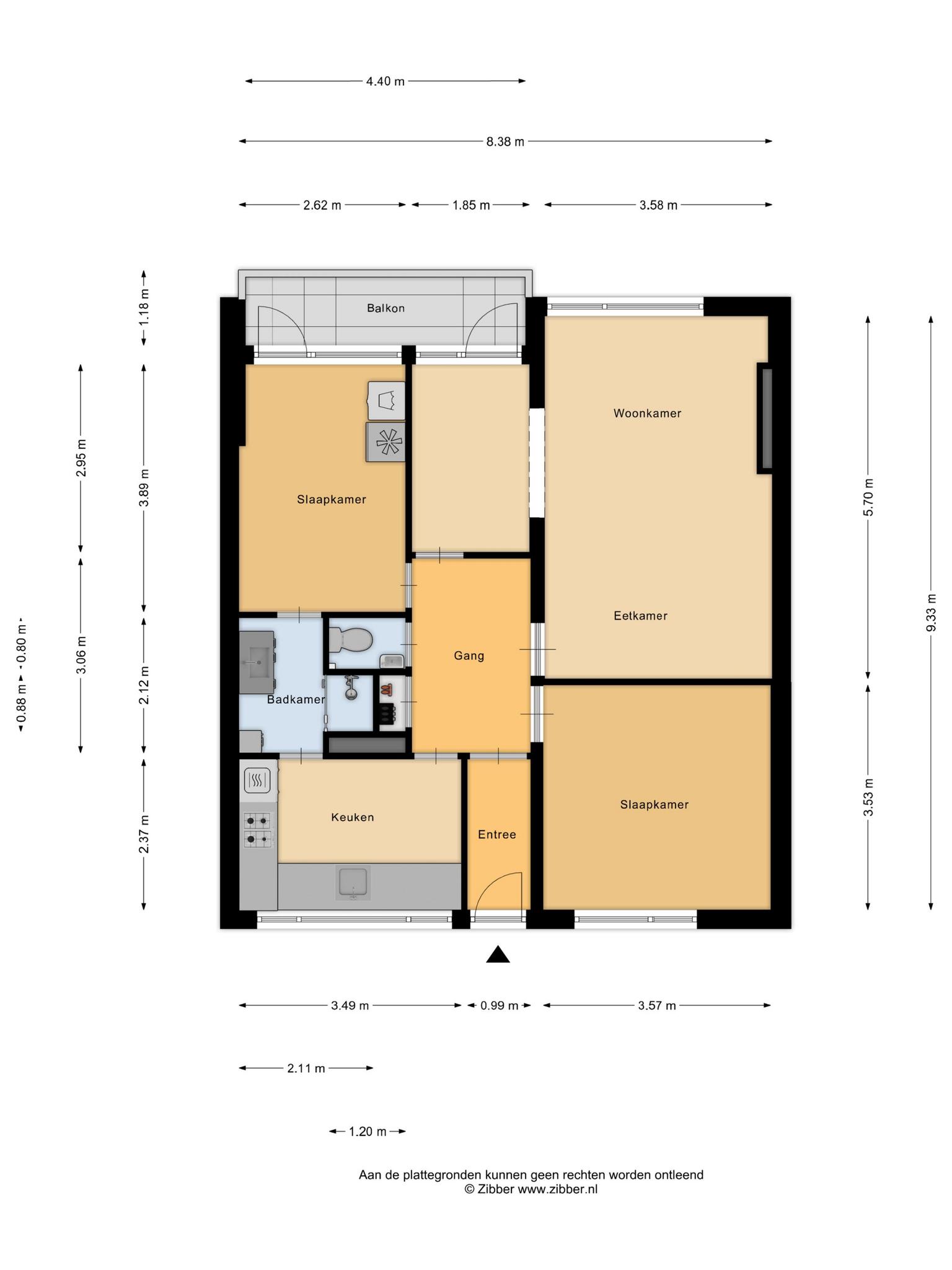
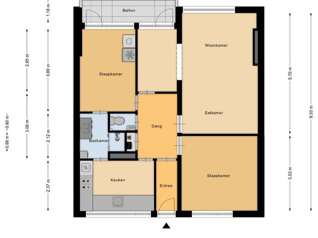
Indeling van het appartement
Entree
De gezamenlijke entree is goed onderhouden en voorzien van brievenbussen en video-intercom. Er is een algemene fietsen- en brommerstalling aanwezig en je beschikt over een ruime privéberging, gelegen onder het complex.
Appartement
Het appartement is licht en ruim, met aan beide zijden een vrij uitzicht over het groen en het water van de Aa. De gezellige woonkamer biedt toegang tot een zonnig balkon op het westen – de perfecte plek om te ontspannen en te genieten van de natuur om je heen. Dit balkon is ook via een van de slaapkamers bereikbaar.
Er zijn twee ruime slaapkamers, met de mogelijkheid om eenvoudig een derde kamer te realiseren. De keuken is uitgerust met diverse inbouwapparatuur, waaronder een vaatwasser en koelkast.
De badkamer is bereikbaar via de keuken en via een slaapkamer. Deze is voorzien van een wastafel en een douche. In de gang bevindt zich het separate toilet met fonteintje.
Bijzonderheden:
- Lichte en ruime kamers met prachtig uitzicht
- Zonnig balkon op het westen
- Twee ruime slaapkamers met mogelijkheid tot een derde slaapkamer
- Eigen berging
- Vrij parkeren voor de deur
- Actieve VvE (maandelijkse bijdrage van €186,85)
Wil jij wonen op een rustige, groene locatie met alle voorzieningen binnen handbereik? Maak snel een afspraak voor een bezichtiging en ontdek zelf hoe fijn je hier kunt wonen.
Toon meer
Maak een wandeling of fietstocht langs rivier de Aa, zwem of relax bij recreatiegebied de Oosterplas, of ontdek het nabijgelegen Prins Hendrikpark en het Zuiderpark. Ook Sportiom ligt vlakbij voor sportieve activiteiten.
Indeling van het appartement
Entree
De gezamenlijke entree is goed onderhouden en voorzien van brievenbussen en video-intercom. Er is een algemene fietsen- en brommerstalling aanwezig en je beschikt over een ruime privéberging, gelegen onder het complex.
Appartement
Het appartement is licht en ruim, met aan beide zijden een vrij uitzicht over het groen en het water van de Aa. De gezellige woonkamer biedt toegang tot een zonnig balkon op het westen – de perfecte plek om te ontspannen en te genieten van de natuur om je heen. Dit balkon is ook via een van de slaapkamers bereikbaar.
Er zijn twee ruime slaapkamers, met de mogelijkheid om eenvoudig een derde kamer te realiseren. De keuken is uitgerust met diverse inbouwapparatuur, waaronder een vaatwasser en koelkast.
De badkamer is bereikbaar via de keuken en via een slaapkamer. Deze is voorzien van een wastafel en een douche. In de gang bevindt zich het separate toilet met fonteintje.
Bijzonderheden:
- Lichte en ruime kamers met prachtig uitzicht
- Zonnig balkon op het westen
- Twee ruime slaapkamers met mogelijkheid tot een derde slaapkamer
- Eigen berging
- Vrij parkeren voor de deur
- Actieve VvE (maandelijkse bijdrage van €186,85)
Wil jij wonen op een rustige, groene locatie met alle voorzieningen binnen handbereik? Maak snel een afspraak voor een bezichtiging en ontdek zelf hoe fijn je hier kunt wonen.
Kenmerken
Overdracht
- Aangeboden sinds
- 19 juni 2025
- Status
- Verkocht
- Aanvaarding
- In overleg
- Bijdrage VvE
- € 186,58 per maand
Bouw
- Soort woning
- Appartement
- Soort appartement
- Galerijflat
- Bouwjaar
- 1962
- Soort dak
- Plat dak
Oppervlakten en inhoud
- Oppervlakte wonen
- 74 m²
- Oppervlakte gebouwgebonden buitenruimte
- 5 m²
- Oppervlakte externe bergruimte
- 5 m²
- Inhoud
- 243 m³
Indeling
- Aantal kamers
- 3
- Aantal slaapkamers
- 2
- Aantal badkamers
- 1
- Badkamervoorzieningen
- Douche, wastafel en wastafelmeubel
- Aantal woonlagen
- 1
- Voorzieningen
- Lift
Energie
- Energielabel
- D
- Isolatie
- Dubbel glas
- Verwarming
- Cv-ketel
- Warm water
- Cv-ketel
- Cv-ketel
- Nefit proline HRC24/CW4 (2011)
Buitenruimte
- Tuin
- Geen tuin
Bergruimte
- Schuur/berging
- Inpandig
Garage
- Soort garage
- Geen garage
Vereniging van Eigenaren
- Inschrijving KvK
- Ja
- Jaarlijkse vergadering
- Ja
- Periodieke bijdrage
- Reservefonds aanwezig
- Ja
- Onderhoudsplan
- Ja
- Opstalverzekering
- Ja