Word je warm van ons verhaal? Laten we samen kennismaken!
Neem contact op- 127 m²
- 161 m²
- 4
- B
Omschrijving
Ruime en sfeervolle eengezinswoning in een kindvriendelijke buurt.
Welkom bij Van Ruysdaelstraat 12, een prachtige eengezinswoning gelegen in de rustige en kindvriendelijke woonwijk nabij het historische Heusden. Deze woning biedt veel ruimte, comfort en een gezellige sfeer.
Indeling
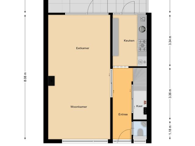
Begane grond
Via de voortuin en voordeur kom je binnen in de hal. Hier vind je de toiletruimte, meterkast en trapopgang naar de eerste verdieping. Vanuit de hal stap je via een mooie glazen schuifdeur de ruime en lichte doorzon woonkamer binnen, die tevens dienst doet als eetkamer. Aan de voorkant is een grote raampartij en aan de achterkant stap je via de schuifpui de tuin in, waar je direct onder een comfortabele overkapping komt. Op de vloer ligt laminaat welke in de keuken overgaat in plavuizen. De keuken is in een L-vorm opgesteld en voorzien van een magnetron, vaatwasser en elektrische kookplaat. In de keuken is ook een deur naar de achtertuin aanwezig.
Eerste verdieping
Via de overloop met trapopgang naar de tweede verdieping zijn de drie slaapkamers en de badkamer bereikbaar. Aan de achterkant bevindt zich slaapkamer 1 en slaapkamer 2. Aan de voorkant is er nog een grote slaapkamer. De badkamer ligt ook aan de voorzijde van de woning en is voorzien van een bad, aparte douche, toilet en een wastafelmeubel.
Tweede verdieping
Middels een vaste trap is de zolder bereikbaar waar naast bergruimte ook de wasmachineaansluiting te vinden is. De ruime zolderkamer is naast slaapkamer ook zeer geschikt als hobby- of kantoorruimte. De houtafwerking op de muur zorgt voor veel sfeer. Achter de knieschotten is de nodige bergruimte te vinden en er is een Velux dakraam aanwezig.
Buitenruimte
De achtertuin is volledig betegeld, waardoor onderhoud minimaal is en je optimaal kunt genieten van de buitenruimte. Direct grenzend aan de schuifpui bevindt zich een fijne overkapping, ideaal voor het buiten zitten ongeacht het weer. Over de volle breedte van de tuin is een stenen berging aanwezig. Via de stenen berging is de achterom te bereiken.
BIJZONDERHEDEN
- Ruime eengezinswoning;
- Kindvriendelijke rustige woonwijk;
- Gelegen nabij het historisch Heusden;
- Vier slaapkamers;
- Overkapping in de achtertuin;
- Ruime berging en achterom;
- Kunststof kozijnen en dubbelglas (met uitzondering van het zolderraam);
- Energielabel B;
- CV-ketel 2023;
- Woning beschikt over 7 zonnepanelen welke gehuurd worden via Hallo Stroom, dit contract kan overgenomen worden door de koper;
Toon meer
Welkom bij Van Ruysdaelstraat 12, een prachtige eengezinswoning gelegen in de rustige en kindvriendelijke woonwijk nabij het historische Heusden. Deze woning biedt veel ruimte, comfort en een gezellige sfeer.
Indeling
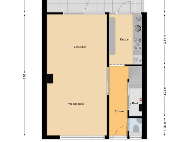
Begane grond
Via de voortuin en voordeur kom je binnen in de hal. Hier vind je de toiletruimte, meterkast en trapopgang naar de eerste verdieping. Vanuit de hal stap je via een mooie glazen schuifdeur de ruime en lichte doorzon woonkamer binnen, die tevens dienst doet als eetkamer. Aan de voorkant is een grote raampartij en aan de achterkant stap je via de schuifpui de tuin in, waar je direct onder een comfortabele overkapping komt. Op de vloer ligt laminaat welke in de keuken overgaat in plavuizen. De keuken is in een L-vorm opgesteld en voorzien van een magnetron, vaatwasser en elektrische kookplaat. In de keuken is ook een deur naar de achtertuin aanwezig.
Eerste verdieping
Via de overloop met trapopgang naar de tweede verdieping zijn de drie slaapkamers en de badkamer bereikbaar. Aan de achterkant bevindt zich slaapkamer 1 en slaapkamer 2. Aan de voorkant is er nog een grote slaapkamer. De badkamer ligt ook aan de voorzijde van de woning en is voorzien van een bad, aparte douche, toilet en een wastafelmeubel.
Tweede verdieping
Middels een vaste trap is de zolder bereikbaar waar naast bergruimte ook de wasmachineaansluiting te vinden is. De ruime zolderkamer is naast slaapkamer ook zeer geschikt als hobby- of kantoorruimte. De houtafwerking op de muur zorgt voor veel sfeer. Achter de knieschotten is de nodige bergruimte te vinden en er is een Velux dakraam aanwezig.
Buitenruimte
De achtertuin is volledig betegeld, waardoor onderhoud minimaal is en je optimaal kunt genieten van de buitenruimte. Direct grenzend aan de schuifpui bevindt zich een fijne overkapping, ideaal voor het buiten zitten ongeacht het weer. Over de volle breedte van de tuin is een stenen berging aanwezig. Via de stenen berging is de achterom te bereiken.
BIJZONDERHEDEN
- Ruime eengezinswoning;
- Kindvriendelijke rustige woonwijk;
- Gelegen nabij het historisch Heusden;
- Vier slaapkamers;
- Overkapping in de achtertuin;
- Ruime berging en achterom;
- Kunststof kozijnen en dubbelglas (met uitzondering van het zolderraam);
- Energielabel B;
- CV-ketel 2023;
- Woning beschikt over 7 zonnepanelen welke gehuurd worden via Hallo Stroom, dit contract kan overgenomen worden door de koper;
Kenmerken
Overdracht
- Aangeboden sinds
- 5 augustus 2025
- Status
- Verkocht
- Aanvaarding
- In overleg
Bouw
- Soort woning
- Woonhuis
- Bouwjaar
- 1973
- Soort dak
- Zadeldak
Oppervlakten en inhoud
- Oppervlakte wonen
- 127 m²
- Oppervlakte gebouwgebonden buitenruimte
- 20 m²
- Oppervlakte externe bergruimte
- 14 m²
- Perceel
- 161 m²
- Inhoud
- 450 m³
Indeling
- Aantal kamers
- 5
- Aantal slaapkamers
- 4
- Aantal badkamers
- 1
- Badkamervoorzieningen
- Ligbad, toilet, douche en wastafel
- Aantal woonlagen
- 3
Energie
- Energielabel
- B
- Verwarming
- Cv-ketel
- Warm water
- Cv-ketel
- Cv-ketel
- Combiketel
Buitenruimte
- Ligging
- In woonwijk
- Tuin
- Achtertuin en voortuin
Bergruimte
- Schuur/berging
- Aangebouwd steen
- Voorzieningen
- Voorzien van elektra
Garage
- Soort garage
- Geen garage