Word je warm van ons verhaal? Laten we samen kennismaken!
Neem contact op- 136 m²
- 162 m²
- 4
Omschrijving
Fraaie aan de voor- en achterkant uitgebouwde woning, met dakkapel en een gezellige overkapping in de tuin. Deze moderne, eigentijds afgewerkte woning heeft veel licht, ruimte en mogelijkheden.
Ideaal gelegen op een toplocatie en aan een brede groenvoorziening, met op korte afstand sportvoorzieningen, winkels, natuur en uitvalswegen.
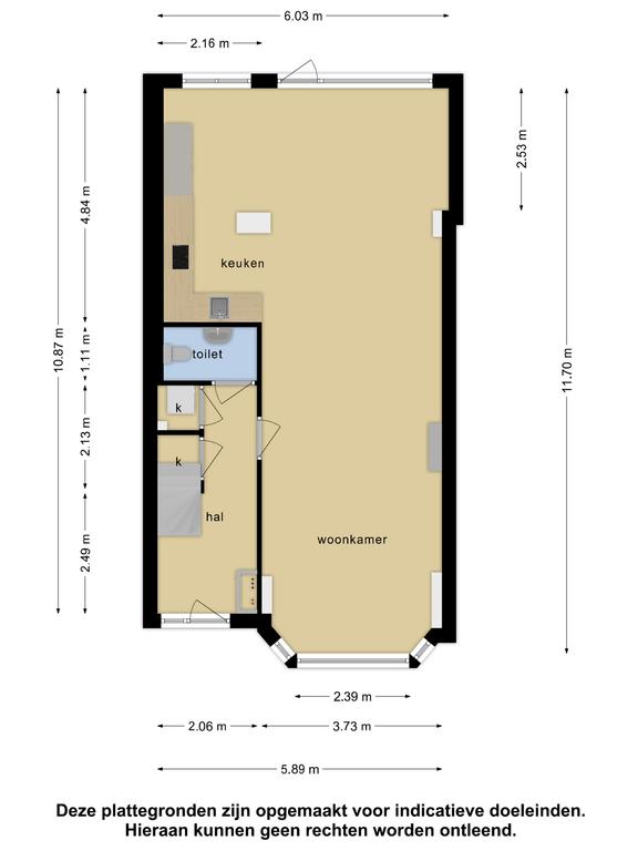
Parterre betonvloer:
•Entree, hal met trapopgang, garderobe, vernieuwde meterkast, ruim toilet, berging en kastruimte met aansluiting van de wasmachine aansluiting. Toegangsdeur naar de woonkamer.
•Lichte woonkamer waarvan de vloer afgewerkt is met een prachtige pvc-vloer, die doorloopt in de hal en in de keuken.
•De uitbouwde erker aan de voorzijde zorgt voor extra licht en ruimte en een gezellige zithoek. De ruimte is keurig afgewerkt met een gestuct plafond en gestucte muren. De isolerende beglazing en een gezellige gashaard zorgen voor extra comfort.
•De royale eetkeuken is in een hoekopstelling geplaatst en voorzien van veel kastruimte met inbouwapparatuur. Aan apparatuur is aanwezig een combi-oven, vaatwasser, oven, koelkast en een inductiekookplaat met afzuigkap.
•Deur naar het terras.
1ste verdieping betonvloer:
•Ruime overloop met toegang tot 3 slaapkamers en de badkamer. Het toilet is separaat op deze verdieping gelegen.
•De badkamer heeft een inloopdouche en een wastafelmeubel.
•Slaapkamer 1 heeft circa 11,5m2 vloeroppervlak, een wastafelmeubel en toegang tot het balkon.
•Slaapkamer 2 heeft circa 15,7m2 vloeroppervlak.
•Slaapkamer 3 heeft circa 6,4m2 vloeroppervlak
•Alle kamers zijn afgewerkt met stucwerk en een recent gelegde pvc-vloer, de ramen zijn gedeeltelijk dubbelglas. De radiatoren zijn voorzien van een ombouw.
•Vaste trap naar de verdieping.
2de verdieping houten balklaag:
•Voorzolder met toegang tot de berging, een vaste kast en de vierde slaapkamer.
•In de berging is ook de cv-ketel opgesteld en zorgt een dakraam voor daglicht.
•4e slaapkamer met brede dakkapel (met rolluik) en ruimte voor berging achter knieschot. Deze verdieping is afgewerkt met een laminaatvloer.
Buitenleven:
•Wat een heerlijk buitenleven is hier gecreëerd. Onder de gezellige overkapping is het mogelijk om lang te tafelen. De zonnige tuin is onderhoudsvriendelijk ingericht en is op het oosten gelegen. De woning heeft toegang tot de achterom/de brandgang. Naast de overkapping is er ook een stenen berging aanwezig.
•Aan de voorzijde van de woning is voldoende openbare parkeergelegenheid.
Specificaties:
Bouwjaar: 1964
Perceeloppervlakte: 162m²
Woonoppervlak: 136m²
Overige inpandige bergruimte: 0m²
Gebouw gebonden buitenruimte: 4m²
Externe bergruimte: 8,5m²
Inhoud van de woning: 482m³
Aanvaarding: in overleg
ENTHOUSIAST geworden over deze fantastische woning met vele extra’s? Een juiste beoordeling van de woning komt het beste tot zijn recht bij een persoonlijke rondleiding, die ik graag voor u verzorg. Neem hiervoor contact op met ons kantoor in Helvoirt.
Toon meer
Ideaal gelegen op een toplocatie en aan een brede groenvoorziening, met op korte afstand sportvoorzieningen, winkels, natuur en uitvalswegen.
Parterre betonvloer:
•Entree, hal met trapopgang, garderobe, vernieuwde meterkast, ruim toilet, berging en kastruimte met aansluiting van de wasmachine aansluiting. Toegangsdeur naar de woonkamer.
•Lichte woonkamer waarvan de vloer afgewerkt is met een prachtige pvc-vloer, die doorloopt in de hal en in de keuken.
•De uitbouwde erker aan de voorzijde zorgt voor extra licht en ruimte en een gezellige zithoek. De ruimte is keurig afgewerkt met een gestuct plafond en gestucte muren. De isolerende beglazing en een gezellige gashaard zorgen voor extra comfort.
•De royale eetkeuken is in een hoekopstelling geplaatst en voorzien van veel kastruimte met inbouwapparatuur. Aan apparatuur is aanwezig een combi-oven, vaatwasser, oven, koelkast en een inductiekookplaat met afzuigkap.
•Deur naar het terras.
1ste verdieping betonvloer:
•Ruime overloop met toegang tot 3 slaapkamers en de badkamer. Het toilet is separaat op deze verdieping gelegen.
•De badkamer heeft een inloopdouche en een wastafelmeubel.
•Slaapkamer 1 heeft circa 11,5m2 vloeroppervlak, een wastafelmeubel en toegang tot het balkon.
•Slaapkamer 2 heeft circa 15,7m2 vloeroppervlak.
•Slaapkamer 3 heeft circa 6,4m2 vloeroppervlak
•Alle kamers zijn afgewerkt met stucwerk en een recent gelegde pvc-vloer, de ramen zijn gedeeltelijk dubbelglas. De radiatoren zijn voorzien van een ombouw.
•Vaste trap naar de verdieping.
2de verdieping houten balklaag:
•Voorzolder met toegang tot de berging, een vaste kast en de vierde slaapkamer.
•In de berging is ook de cv-ketel opgesteld en zorgt een dakraam voor daglicht.
•4e slaapkamer met brede dakkapel (met rolluik) en ruimte voor berging achter knieschot. Deze verdieping is afgewerkt met een laminaatvloer.
Buitenleven:
•Wat een heerlijk buitenleven is hier gecreëerd. Onder de gezellige overkapping is het mogelijk om lang te tafelen. De zonnige tuin is onderhoudsvriendelijk ingericht en is op het oosten gelegen. De woning heeft toegang tot de achterom/de brandgang. Naast de overkapping is er ook een stenen berging aanwezig.
•Aan de voorzijde van de woning is voldoende openbare parkeergelegenheid.
Specificaties:
Bouwjaar: 1964
Perceeloppervlakte: 162m²
Woonoppervlak: 136m²
Overige inpandige bergruimte: 0m²
Gebouw gebonden buitenruimte: 4m²
Externe bergruimte: 8,5m²
Inhoud van de woning: 482m³
Aanvaarding: in overleg
ENTHOUSIAST geworden over deze fantastische woning met vele extra’s? Een juiste beoordeling van de woning komt het beste tot zijn recht bij een persoonlijke rondleiding, die ik graag voor u verzorg. Neem hiervoor contact op met ons kantoor in Helvoirt.
Kenmerken
Overdracht
- Aangeboden sinds
- 5 augustus 2025
- Status
- Verkocht
- Aanvaarding
- In overleg
Bouw
- Soort woning
- Woonhuis
- Bouwjaar
- 1964
Oppervlakten en inhoud
- Oppervlakte wonen
- 136 m²
- Oppervlakte gebouwgebonden buitenruimte
- 4 m²
- Oppervlakte externe bergruimte
- 9 m²
- Perceel
- 162 m²
- Inhoud
- 482 m³
Indeling
- Aantal kamers
- 6
- Aantal slaapkamers
- 4
- Aantal badkamers
- 1
- Badkamervoorzieningen
- Wastafelmeubel en inloopdouche
- Aantal woonlagen
- 3
Energie
- Isolatie
- Dakisolatie en gedeeltelijk dubbel glas
- Verwarming
- Cv-ketel en gashaard
- Warm water
- Cv-ketel
- Cv-ketel
- Combiketel uit 2006
Buitenruimte
- Tuin
- Achtertuin en voortuin
- Achtertuin
- 61 m² gelegen op het oosten met achterom
Bergruimte
- Schuur/berging
- Vrijstaand steen
Garage
- Soort garage
- Geen garage