Word je warm van ons verhaal? Laten we samen kennismaken!
Neem contact op- 97 m²
- 2
- C
Omschrijving
Dit ruime 3-kamer appartement is instapklaar met ruim balkon, gelegen in het centrum van Waalwijk, biedt een ideale combinatie van de voorzieningen van de stad en de rust die u zoekt. Of u nu op zoek bent naar een levensloopbestendige woning of gewoon wilt genieten van de gemakken van het stadsleven, dit appartement biedt alles wat u nodig heeft. Geniet van de perfecte balans tussen comfort, stijl en een uitstekende ligging. Dit moderne appartement is in 2020 gerenoveerd. De keuken, badkamer, vloeren en de afwerking is in 2020 nog compleet gemoderniseerd.
Het appartementencomplex is voorzien van een centrale hal met trappenhuis, liftinstallatie en parkeergarage.
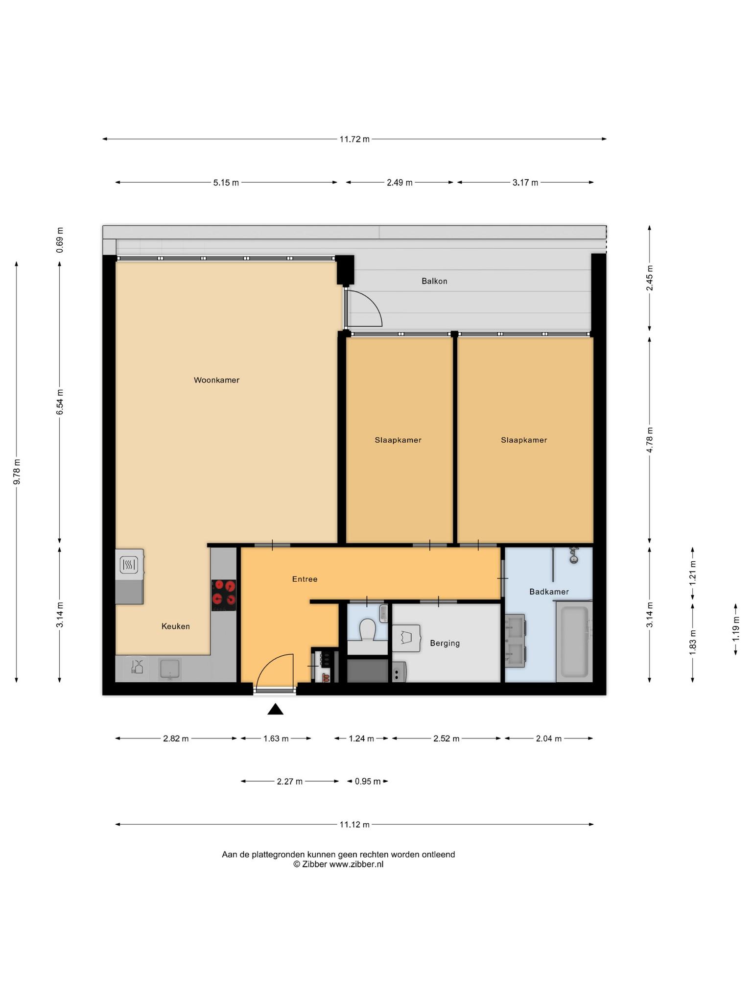
Indeling:
We betreden het appartement via de voordeur en komen terecht in de entreehal, deze entreehal biedt de toegang tot alle ruimtes in dit appartement. Bij binnenkomst in de woonkamer valt meteen de ruime lichtinval op, dankzij de grote raampartijen. In deze ruime woonkamer is er voldoende ruimte voor een gezellige zithoek en eettafel en kunt u het interieur geheel naar eigen smaak inrichten. De open keuken uit 2020, grenzend aan de woonkamer, is van alle gemakken voorzien en uitgerust met moderne inbouwapparatuur zoals een inductiekookplaat, koelkast, vaatwasser en een combi-oven. Vanuit de woonkamer heeft u ook toegang tot het balkon op het oosten, waar u elke ochtend kunt genieten van de zon en de dag in alle rust kunt beginnen met een kop koffie.
Het appartement beschikt over twee ruime slaapkamers. De hoofdslaapkamer is groot genoeg voor het plaatsen van een tweepersoonsbed. De tweede slaapkamer kunt u natuurlijk ook gebruiken als werkkamer, inloopkast of hobbyruimte, de mogelijkheden zijn eindeloos. De badkamer is luxe afgewerkt en voorzien van een inloopdouche, een dubbele wastafel met meubel en ligbad. Daarnaast is het appartement voorzien van een separaat toilet, dat eveneens zeer stijlvol is afgewerkt.
Tot slot is het appartement nog voorzien van een praktische berging voor het plaatsen van witgoedapparatuur, maar is ook geschikt voor het opbergen van diverse spullen. In deze ruimte treffen we ook de cv-installatie.
In de kelder van het complex beschikt het appartement nog over een ruime berging, waar de fietsen en andere spullen kunnen worden geplaatst. Ook beschikt het gebouw over een parkeergarage waar we een privé parkeerplaats treffen. Zo kunt u de auto altijd veilig parkeren.
Locatie:
Dit appartement ligt in het centrum van Waalwijk, met winkels, restaurants en supermarkten op loopafstand. U heeft dus alle voorzieningen binnen handbereik. Daarnaast ligt het appartement op slechts 10 minuten afstand rijden van de Drunense Duinen, een prachtig natuurgebied waar u kunt wandelen, fietsen of gewoon kunt genieten van de natuur. De snelweg A59 is eveneens dichtbij, waardoor u snel in de omliggende steden als Tilburg, Den Bosch en Breda bent.
Bijzonderheden:
- Woonoppervlak van 97m², biedt volop ruimte en comfort.
- Moderne keuken uit 2020 met inbouwapparatuur, geschikt voor het bereiden van de lekkerste gerechten.
- Zeer ruime woonkamer met voldoende ruimte voor zowel een zithoek als een eettafel.
- Ruim balkon op het oosten, ideaal voor het genieten van de ochtendzon.
- Twee ruime slaapkamers
- Energielabel C
Toon meer
Het appartementencomplex is voorzien van een centrale hal met trappenhuis, liftinstallatie en parkeergarage.
Indeling:
We betreden het appartement via de voordeur en komen terecht in de entreehal, deze entreehal biedt de toegang tot alle ruimtes in dit appartement. Bij binnenkomst in de woonkamer valt meteen de ruime lichtinval op, dankzij de grote raampartijen. In deze ruime woonkamer is er voldoende ruimte voor een gezellige zithoek en eettafel en kunt u het interieur geheel naar eigen smaak inrichten. De open keuken uit 2020, grenzend aan de woonkamer, is van alle gemakken voorzien en uitgerust met moderne inbouwapparatuur zoals een inductiekookplaat, koelkast, vaatwasser en een combi-oven. Vanuit de woonkamer heeft u ook toegang tot het balkon op het oosten, waar u elke ochtend kunt genieten van de zon en de dag in alle rust kunt beginnen met een kop koffie.
Het appartement beschikt over twee ruime slaapkamers. De hoofdslaapkamer is groot genoeg voor het plaatsen van een tweepersoonsbed. De tweede slaapkamer kunt u natuurlijk ook gebruiken als werkkamer, inloopkast of hobbyruimte, de mogelijkheden zijn eindeloos. De badkamer is luxe afgewerkt en voorzien van een inloopdouche, een dubbele wastafel met meubel en ligbad. Daarnaast is het appartement voorzien van een separaat toilet, dat eveneens zeer stijlvol is afgewerkt.
Tot slot is het appartement nog voorzien van een praktische berging voor het plaatsen van witgoedapparatuur, maar is ook geschikt voor het opbergen van diverse spullen. In deze ruimte treffen we ook de cv-installatie.
In de kelder van het complex beschikt het appartement nog over een ruime berging, waar de fietsen en andere spullen kunnen worden geplaatst. Ook beschikt het gebouw over een parkeergarage waar we een privé parkeerplaats treffen. Zo kunt u de auto altijd veilig parkeren.
Locatie:
Dit appartement ligt in het centrum van Waalwijk, met winkels, restaurants en supermarkten op loopafstand. U heeft dus alle voorzieningen binnen handbereik. Daarnaast ligt het appartement op slechts 10 minuten afstand rijden van de Drunense Duinen, een prachtig natuurgebied waar u kunt wandelen, fietsen of gewoon kunt genieten van de natuur. De snelweg A59 is eveneens dichtbij, waardoor u snel in de omliggende steden als Tilburg, Den Bosch en Breda bent.
Bijzonderheden:
- Woonoppervlak van 97m², biedt volop ruimte en comfort.
- Moderne keuken uit 2020 met inbouwapparatuur, geschikt voor het bereiden van de lekkerste gerechten.
- Zeer ruime woonkamer met voldoende ruimte voor zowel een zithoek als een eettafel.
- Ruim balkon op het oosten, ideaal voor het genieten van de ochtendzon.
- Twee ruime slaapkamers
- Energielabel C
Kenmerken
Overdracht
- Aangeboden sinds
- 19 juni 2025
- Status
- Verkocht
- Aanvaarding
- In overleg
- Bijdrage VvE
- € 232,03 per maand
Bouw
- Soort woning
- Appartement
- Soort appartement
- Portiekflat
- Bouwjaar
- 1994
- Soort dak
- Plat dak
Oppervlakten en inhoud
- Oppervlakte wonen
- 97 m²
- Oppervlakte gebouwgebonden buitenruimte
- 14 m²
- Oppervlakte externe bergruimte
- 9 m²
- Inhoud
- 322 m³
Indeling
- Aantal kamers
- 3
- Aantal slaapkamers
- 2
- Aantal badkamers
- 1
- Badkamervoorzieningen
- Ligbad, dubbele wastafel, wastafelmeubel en inloopdouche
- Aantal woonlagen
- 1
- Gelegen op
- 4
- Voorzieningen
- Mechanische ventilatie, tv-kabel, buitenzonwering en lift
Energie
- Energielabel
- C
- Isolatie
- Dakisolatie, muurisolatie en hr glas
- Verwarming
- Cv-ketel
- Warm water
- Cv-ketel
- Cv-ketel
- Vaillant (combiketel uit 2020)
Buitenruimte
- Ligging
- In centrum en in bosrijke omgeving
- Tuin
- Geen tuin
Bergruimte
- Schuur/berging
- Inpandig
- Voorzieningen
- Voorzien van elektra
Garage
- Soort garage
- Parkeerkelder en parkeerplaats
Vereniging van Eigenaren
- Inschrijving KvK
- Ja
- Jaarlijkse vergadering
- Ja
- Periodieke bijdrage
- Reservefonds aanwezig
- Ja
- Onderhoudsplan
- Ja
- Opstalverzekering
- Ja