Word je warm van ons verhaal? Laten we samen kennismaken!
Neem contact op- 103 m²
- 257 m²
- 3
- C
Omschrijving
Mooi en rustig gelegen, uitgebouwde twee-onder-een-kapwoning met een grote garage van 23m2, een eigen oprit met afsluitbare poort, 14 zonnepanelen uit 2022 en volledig vrij uitzicht op het Oranjeveld.
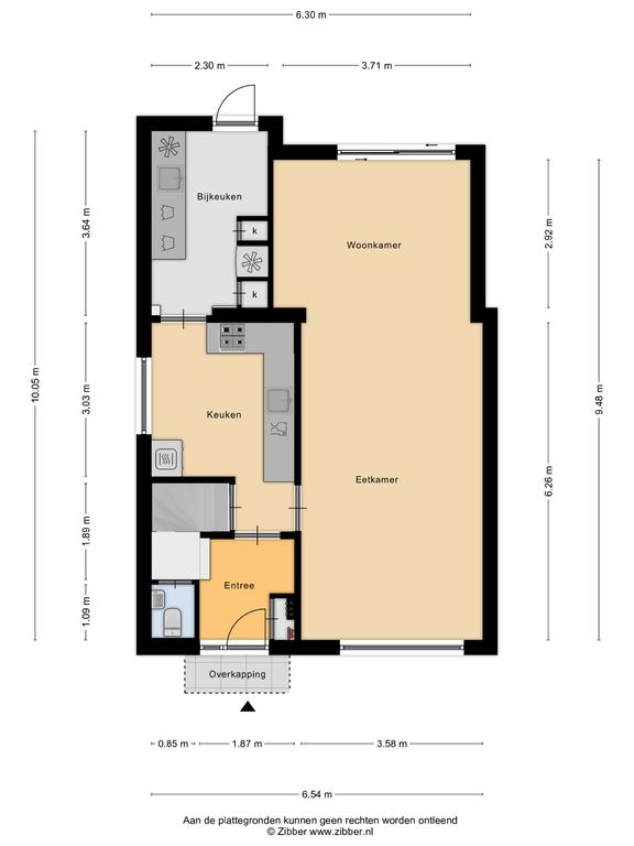
Indeling
Begane grond:
Wij betreden de woning vanaf de straat over de lange oprit, met plaats voor meerdere auto's, naar de voordeur. Bij binnenkomst betreden we de hal met daarin de trapopgang, meterkast, betegelde toiletruimte met fonteintje en de doorgang naar de keuken en woonkamer. De woonkamer is voorzien van een massief eiken visgraat vloer en heeft aan de voorzijde vrij uitzicht op het Oranjeveld. De schuifpui aan de achterzijde verbindt de woonkamer met de tuin.
De uitbouw maakt de woonkamer ruimtelijk, de airconditioning verhoogt zomer en winter het comfort.
De moderne keuken is toegankelijk vanuit de hal en is evenals de hal, keuken en bijkeuken voorzien van vloerverwarming. De moderne keuken is toegankelijk vanuit de hal en is evenals de hal, keuken en bijkeuken voorzien van vloerverwarming.
Eerste verdieping:
Via de trapopgang in de hal is de eerste verdieping bereikbaar. De overloop geeft toegang tot twee slaapkamers en de badkamer. De hoofdslaapkamer beschikt over airconditioning en screens. De hoofdslaapkamer is eenvoudig weer terug te brengen naar twee separate slaapkamers. De moderne badkamer is voorzien van een fraaie ronde inloopdouche, ligbad, wastafel, toilet en designradiator en is daarmee van alle gemakken voorzien.
Tweede verdieping:
Via de vaste trap is de zolder te bereiken, die functioneert als volwaardige extra slaapkamer. Deze ruimte is netjes afgewerkt, de twee Velux dakramen maken hier een lichte ruimte van. Op de voorzolder bevinden zich de cv-ketel en de omvormer van de zonnepanelen. Op de voorzolder is er extra kastruimte. De gehele zolder wordt verlicht door middel van inbouwspots.
Tuin:
De tuin is gunstig georiënteerd op het westen, waardoor u op zonnige dagen kunt genieten van de ochtend-, middag- en avondzon. De tuin biedt zeer veel privacy en is voorzien van veel groen. Het terras is voorzien van een elektrisch bedienbare zonneluifel. De tuin geeft toegang tot de extra grote garage van ruim 23 m2.
De oprit wordt afgesloten met een poort waar u een auto achter kunt parkeren of uw caravan kunt stallen.
Locatie:
De locatie laat weinig te wensen over. U heeft vanuit de woning een fraai vrij zicht op het groene Oranjeveld. De woning is gelegen in Braken-Oost en is slechts enkele straten verwijderd van scholen, het gezondheidscentrum, sportvoorzieningen en de bushalte. Ook het gezellige centrum van Drunen is te voet prima te bereiken.
Bijzonderheden:
- 14 Zonnepanelen van LG geïnstalleerd door PureSolar in 2022;
- Gunstige locatie ten opzichte van het centrum en de snelweg;
- Airconditioning in de woonkamer en ouderslaapkamer;
- Nette zolderverdieping met volwaardige slaapkamer;
- Begane grond is uitgebouwd en heeft een praktische bijkeuken;
- Grote garage en oprit voor meerdere auto's;
- Aanvaarding in overleg.
Toon meer
Indeling
Begane grond:
Wij betreden de woning vanaf de straat over de lange oprit, met plaats voor meerdere auto's, naar de voordeur. Bij binnenkomst betreden we de hal met daarin de trapopgang, meterkast, betegelde toiletruimte met fonteintje en de doorgang naar de keuken en woonkamer. De woonkamer is voorzien van een massief eiken visgraat vloer en heeft aan de voorzijde vrij uitzicht op het Oranjeveld. De schuifpui aan de achterzijde verbindt de woonkamer met de tuin.
De uitbouw maakt de woonkamer ruimtelijk, de airconditioning verhoogt zomer en winter het comfort.
De moderne keuken is toegankelijk vanuit de hal en is evenals de hal, keuken en bijkeuken voorzien van vloerverwarming. De moderne keuken is toegankelijk vanuit de hal en is evenals de hal, keuken en bijkeuken voorzien van vloerverwarming.
Eerste verdieping:
Via de trapopgang in de hal is de eerste verdieping bereikbaar. De overloop geeft toegang tot twee slaapkamers en de badkamer. De hoofdslaapkamer beschikt over airconditioning en screens. De hoofdslaapkamer is eenvoudig weer terug te brengen naar twee separate slaapkamers. De moderne badkamer is voorzien van een fraaie ronde inloopdouche, ligbad, wastafel, toilet en designradiator en is daarmee van alle gemakken voorzien.
Tweede verdieping:
Via de vaste trap is de zolder te bereiken, die functioneert als volwaardige extra slaapkamer. Deze ruimte is netjes afgewerkt, de twee Velux dakramen maken hier een lichte ruimte van. Op de voorzolder bevinden zich de cv-ketel en de omvormer van de zonnepanelen. Op de voorzolder is er extra kastruimte. De gehele zolder wordt verlicht door middel van inbouwspots.
Tuin:
De tuin is gunstig georiënteerd op het westen, waardoor u op zonnige dagen kunt genieten van de ochtend-, middag- en avondzon. De tuin biedt zeer veel privacy en is voorzien van veel groen. Het terras is voorzien van een elektrisch bedienbare zonneluifel. De tuin geeft toegang tot de extra grote garage van ruim 23 m2.
De oprit wordt afgesloten met een poort waar u een auto achter kunt parkeren of uw caravan kunt stallen.
Locatie:
De locatie laat weinig te wensen over. U heeft vanuit de woning een fraai vrij zicht op het groene Oranjeveld. De woning is gelegen in Braken-Oost en is slechts enkele straten verwijderd van scholen, het gezondheidscentrum, sportvoorzieningen en de bushalte. Ook het gezellige centrum van Drunen is te voet prima te bereiken.
Bijzonderheden:
- 14 Zonnepanelen van LG geïnstalleerd door PureSolar in 2022;
- Gunstige locatie ten opzichte van het centrum en de snelweg;
- Airconditioning in de woonkamer en ouderslaapkamer;
- Nette zolderverdieping met volwaardige slaapkamer;
- Begane grond is uitgebouwd en heeft een praktische bijkeuken;
- Grote garage en oprit voor meerdere auto's;
- Aanvaarding in overleg.
Kenmerken
Overdracht
- Aangeboden sinds
- 22 oktober 2025
- Status
- Verkocht
- Aanvaarding
- In overleg
Bouw
- Soort woning
- Woonhuis
- Bouwjaar
- 1965
- Soort dak
- Zadeldak
Oppervlakten en inhoud
- Oppervlakte wonen
- 103 m²
- Oppervlakte overige inpandige ruimte
- 12 m²
- Oppervlakte gebouwgebonden buitenruimte
- 26 m²
- Oppervlakte externe bergruimte
- 23 m²
- Perceel
- 257 m²
- Inhoud
- 415 m³
Indeling
- Aantal kamers
- 6
- Aantal slaapkamers
- 3
- Aantal badkamers
- 1
- Badkamervoorzieningen
- Ligbad, toilet, wastafel en inloopdouche
- Aantal woonlagen
- 3
- Voorzieningen
- Buitenzonwering, airconditioning, schuifpui, dakraam, glasvezel kabel en zonnepanelen
Energie
- Energielabel
- C
- Isolatie
- Dakisolatie, vloerisolatie en dubbel glas
- Verwarming
- Cv-ketel
- Warm water
- Cv-ketel
- Cv-ketel
- Nefit excellent HRC30H (combiketel uit 2004)
Buitenruimte
- Ligging
- Aan rustige weg, in centrum, in woonwijk en vrij uitzicht
- Tuin
- Achtertuin, voortuin en zijtuin
- Achtertuin
- 100 m² gelegen op het westen met achterom
Garage
- Soort garage
- Vrijstaand steen
- Capaciteit
- 1
- Voorzieningen
- Elektra