Word je warm van ons verhaal? Laten we samen kennismaken!
Neem contact op- 109 m²
- 131 m²
- 5
- C
Omschrijving
Deze leuke tussenwoning aan het Wolgaplantsoen in Drunen is gelegen op een gewilde locatie en ideaal voor gezinnen die op zoek zijn naar ruimte en comfort. De woning beschikt over maar liefst vier ruime slaapkamers, en zelfs een mogelijk vijfde slaapkamer, waardoor er plek genoeg is voor het hele gezin. Dankzij de recent geplaatste dakkapellen op de tweede verdieping is er nóg meer leefruimte gecreëerd. De zonnige tuin is gelegen op het zuidoosten en biedt volop mogelijkheden om te genieten van het buitenleven. Met een combinatie van moderne voorzieningen en enorm veel potentie is dit een woning waar je met plezier zult wonen.
INDELING
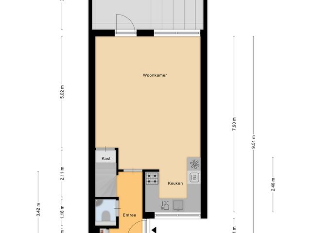
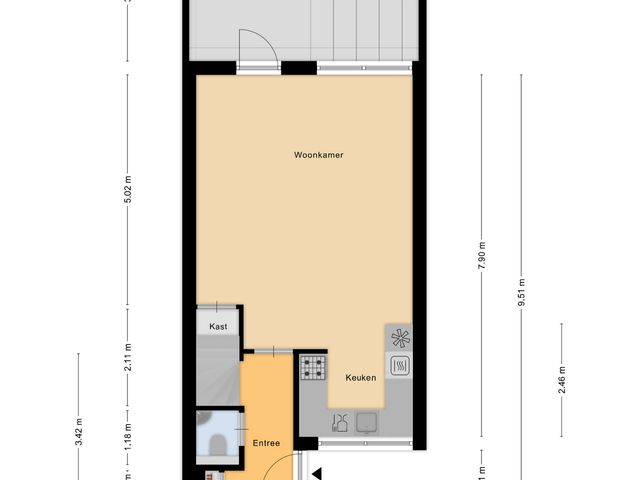
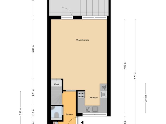
Begane grond:
Bij binnenkomst betreed je de woning via de entreehal, die toegang biedt tot de meterkast, het toilet, de trap naar de eerste verdieping en de woonkamer. De ruime woonkamer is heerlijk licht en biedt volop mogelijkheden voor een gezellige zithoek en een grote eettafel. Vanuit de woonkamer heb je via een deur direct toegang tot de achtertuin. De open keuken aan de voorzijde van de woning is modern ingericht en voorzien van diverse inbouwapparatuur, waaronder een vaatwasser, koelkast, combi-magnetron en een quooker. Daarnaast is er een praktische trapkast die extra bergruimte biedt.
Eerste verdieping:
Via de overloop heb je toegang tot drie slaapkamers en de badkamer. De hoofdslaapkamer is ruim en biedt voldoende plek voor een tweepersoonsbed en een grote kledingkast. De overige twee slaapkamers zijn veelzijdig in te richten, bijvoorbeeld als kinderkamer, logeerkamer of thuiskantoor. De badkamer is voorzien van een bad-douchecombinatie, een toilet en een wastafel, waardoor alle gemakken aanwezig zijn.
Tweede verdieping:
De tweede verdieping is bereikbaar via een vaste trap en biedt verrassend veel ruimte. Hier bevindt zich een grote slaapkamer, die dankzij de recent geplaatste dakkapellen uit augustus 2025 extra licht en ruimte heeft gekregen. De kamer is zelfs groot genoeg om op te splitsen in twee aparte slaapkamers, wat volop mogelijkheden biedt voor grotere gezinnen of werken aan huis. Op de overloop vind je bovendien de aansluitingen voor de wasmachine en droger, evenals de cv-installatie uit 2018.
TUIN
De achtertuin is maar liefst 12,5 meter diep en heerlijk gelegen op het zuidoosten, waardoor je de hele dag van de zon kunt genieten. Onder de overkapping is er ruimte voor een loungebank waar je in alle rust kunt ontspannen. Verder beschikt de tuin over een praktische berging voor fietsen en tuingereedschap en een achterom. De tuin is geheel naar eigen smaak in te richten en biedt daardoor eindeloos veel mogelijkheden.
LOCATIE
De woning is gelegen aan het Wolgaplantsoen 5 in Drunen, een fijne en kindvriendelijke woonwijk. Direct tegenover de woning bevindt zich een speeltuin, wat deze locatie ideaal maakt voor gezinnen met jonge kinderen. Daarnaast zijn scholen, winkels en sportvoorzieningen op korte afstand bereikbaar. Ook de natuur ligt om de hoek (Loonse en Drunense duinen), waardoor je zowel rust als gemak binnen handbereik hebt. Dankzij de gunstige ligging zijn de uitvalswegen richting Waalwijk, Den Bosch en Tilburg eveneens snel bereikbaar.
BIJZONDERHEDEN
- Ruime tussenwoning op een gewilde en kindvriendelijke locatie in Drunen
- Vier ruime slaapkamers, met de mogelijkheid tot een vijfde slaapkamer
- Twee nieuwe dakkapellen (augustus 2025) zorgen voor extra licht en ruimte
- Diepe achtertuin van 12,5 meter, ideaal gelegen op het zuidoosten
- Natuur dichtbij: op korte afstand van de Loonse en Drunense Duinen
- Centrale ligging met goede bereikbaarheid naar Waalwijk, Den Bosch en Tilburg
Toon meer
INDELING
Begane grond:
Bij binnenkomst betreed je de woning via de entreehal, die toegang biedt tot de meterkast, het toilet, de trap naar de eerste verdieping en de woonkamer. De ruime woonkamer is heerlijk licht en biedt volop mogelijkheden voor een gezellige zithoek en een grote eettafel. Vanuit de woonkamer heb je via een deur direct toegang tot de achtertuin. De open keuken aan de voorzijde van de woning is modern ingericht en voorzien van diverse inbouwapparatuur, waaronder een vaatwasser, koelkast, combi-magnetron en een quooker. Daarnaast is er een praktische trapkast die extra bergruimte biedt.
Eerste verdieping:
Via de overloop heb je toegang tot drie slaapkamers en de badkamer. De hoofdslaapkamer is ruim en biedt voldoende plek voor een tweepersoonsbed en een grote kledingkast. De overige twee slaapkamers zijn veelzijdig in te richten, bijvoorbeeld als kinderkamer, logeerkamer of thuiskantoor. De badkamer is voorzien van een bad-douchecombinatie, een toilet en een wastafel, waardoor alle gemakken aanwezig zijn.
Tweede verdieping:
De tweede verdieping is bereikbaar via een vaste trap en biedt verrassend veel ruimte. Hier bevindt zich een grote slaapkamer, die dankzij de recent geplaatste dakkapellen uit augustus 2025 extra licht en ruimte heeft gekregen. De kamer is zelfs groot genoeg om op te splitsen in twee aparte slaapkamers, wat volop mogelijkheden biedt voor grotere gezinnen of werken aan huis. Op de overloop vind je bovendien de aansluitingen voor de wasmachine en droger, evenals de cv-installatie uit 2018.
TUIN
De achtertuin is maar liefst 12,5 meter diep en heerlijk gelegen op het zuidoosten, waardoor je de hele dag van de zon kunt genieten. Onder de overkapping is er ruimte voor een loungebank waar je in alle rust kunt ontspannen. Verder beschikt de tuin over een praktische berging voor fietsen en tuingereedschap en een achterom. De tuin is geheel naar eigen smaak in te richten en biedt daardoor eindeloos veel mogelijkheden.
LOCATIE
De woning is gelegen aan het Wolgaplantsoen 5 in Drunen, een fijne en kindvriendelijke woonwijk. Direct tegenover de woning bevindt zich een speeltuin, wat deze locatie ideaal maakt voor gezinnen met jonge kinderen. Daarnaast zijn scholen, winkels en sportvoorzieningen op korte afstand bereikbaar. Ook de natuur ligt om de hoek (Loonse en Drunense duinen), waardoor je zowel rust als gemak binnen handbereik hebt. Dankzij de gunstige ligging zijn de uitvalswegen richting Waalwijk, Den Bosch en Tilburg eveneens snel bereikbaar.
BIJZONDERHEDEN
- Ruime tussenwoning op een gewilde en kindvriendelijke locatie in Drunen
- Vier ruime slaapkamers, met de mogelijkheid tot een vijfde slaapkamer
- Twee nieuwe dakkapellen (augustus 2025) zorgen voor extra licht en ruimte
- Diepe achtertuin van 12,5 meter, ideaal gelegen op het zuidoosten
- Natuur dichtbij: op korte afstand van de Loonse en Drunense Duinen
- Centrale ligging met goede bereikbaarheid naar Waalwijk, Den Bosch en Tilburg
Kenmerken
Overdracht
- Aangeboden sinds
- 6 september 2025
- Status
- Verkocht
- Aanvaarding
- In overleg
Bouw
- Soort woning
- Woonhuis
- Bouwjaar
- 1987
- Soort dak
- Zadeldak
Oppervlakten en inhoud
- Oppervlakte wonen
- 109 m²
- Oppervlakte gebouwgebonden buitenruimte
- 15 m²
- Oppervlakte externe bergruimte
- 9 m²
- Perceel
- 131 m²
- Inhoud
- 387 m³
Indeling
- Aantal kamers
- 5
- Aantal slaapkamers
- 5
- Aantal badkamers
- 1
- Badkamervoorzieningen
- Ligbad, toilet, wastafel en wastafelmeubel
- Aantal woonlagen
- 3
- Voorzieningen
- Rolluiken, tv-kabel, dakraam en natuurlijke ventilatie
Energie
- Energielabel
- C
- Isolatie
- Dakisolatie, muurisolatie en hr glas
- Verwarming
- Cv-ketel
- Warm water
- Cv-ketel
- Cv-ketel
- Vaillant (combiketel uit 2018)
Buitenruimte
- Ligging
- Aan rustige weg, in woonwijk en in bosrijke omgeving
- Tuin
- Achtertuin en voortuin
- Achtertuin
- 64 m² gelegen op het zuidoosten met achterom
Bergruimte
- Schuur/berging
- Vrijstaand hout
Garage
- Soort garage
- Geen garage